Chatham in Kent historically had a dependant relationship between the River Medway and the Local Town, but the closure of the Historic Dockyards caused a division between the two. The proposal for the Riverside Workshop is to repair the relationship between the people of Chatham and the local environment through a recycling education centre and community garden.

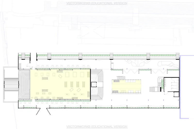
Using the Workbase Armoury site, the Riverside Workshop uses plastic waste harvested from the River Medway through a waterwheel filter system, as well as collection drives from local schools and families, and turn them into plastic sheets. Working together, the visitors are encouraged to build furniture using these sheets, which will then be used within both the site itself and sold to local schools to teach the local community about recycling, the local ecosystem, and how to care for the environment with a hands-on approach.

A secondary production system of turning plants (grown on site) into dyes and paints occurs in the Central Space, leading visitors to the staircase and up to the second floor, where the community garden is situated. Here, visitors are reunited with those they have recently worked with in the workshop, allowing them to gain a sense of community spirit through painting, planting and conversation. The open balcony and external staircase facade allow guests to view the Dockyards and River, reconnecting them to a hugely important part of Chatham’s History.

The Riverside Workshop is designed to be a community hub – reconnecting the people of Chatham to their local environment, and restoring the relationship between the town and the River Medway, through a recycling education centre and community garden. Encouraging conversation through recycling, creation and art.