After the Kingfisher Leisure Centre in Kingston Upon Thames closed, there was only one swimming facility left in the south of the borough. This left residents in the north of the borough without easy access to leisure facilities. The original leisure centre closed temporarily for roof repairs, but the cost of fixing the roof and the worsening condition of the building made it more sensible to demolish it and build a new leisure centre. My project focuses on proposing an alternative to the current plans, building upon the brief set out by Kingston Council and recommendations by Swim England.

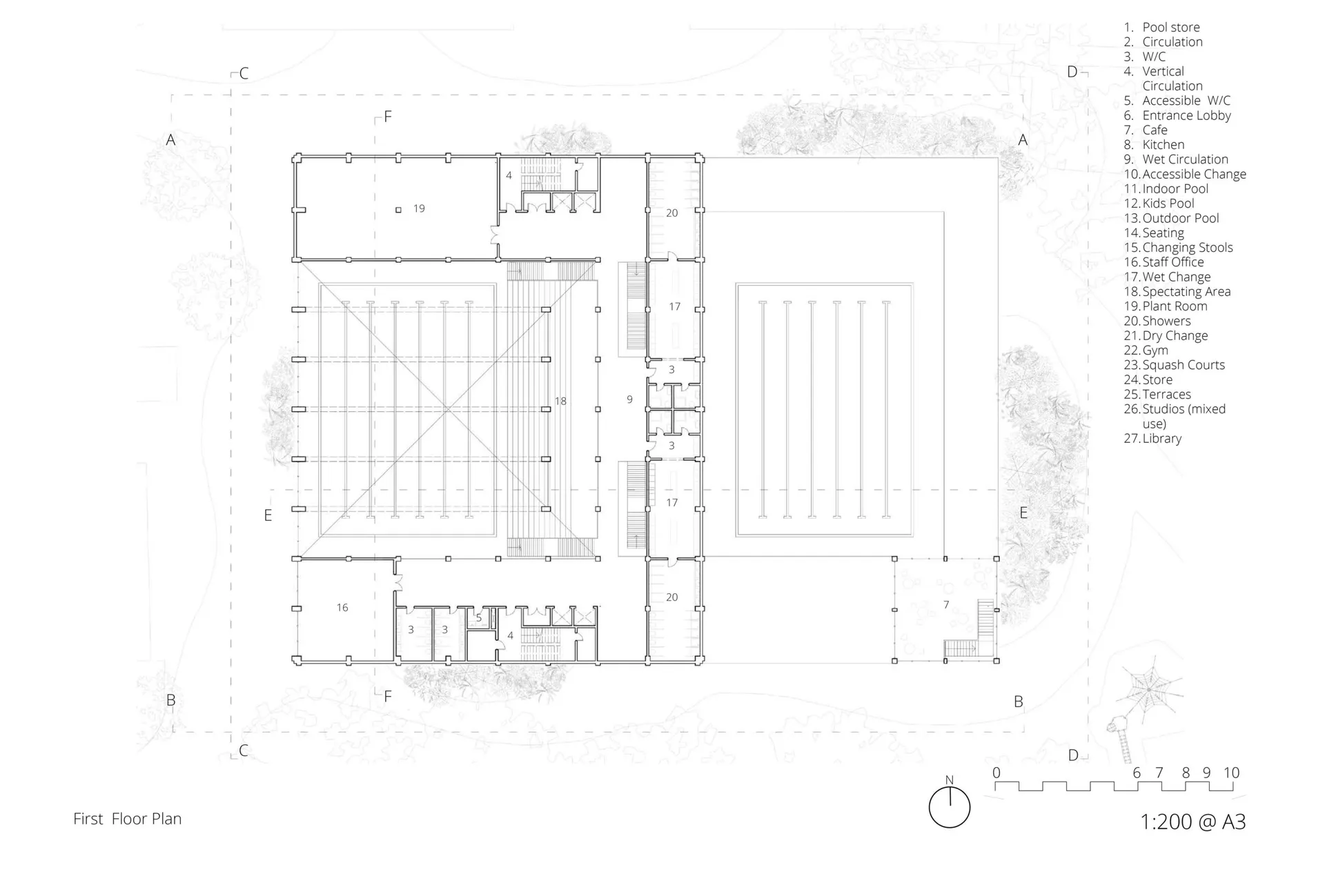
The main goal of this project was to design a building that supports physical activity and mental exercise, taking inspiration from Roman bathhouses. The new leisure centre will include sports halls, gym spaces, and mixed-use studios for teaching and learning.

The new leisure centre will also aim to address the high energy consumption of traditional leisure centres by exploring more sustainable heating and cooling alternatives. One proposal is to connect the building to a District Heating network, which would use excess heat from the Hogsmill sewage treatment works and Kingston crematorium to heat the building and pool water. Additionally, the pool itself could be used as a thermal store outside of operational hours, capturing and redistributing heat to other buildings around Kingston.