This project is situated amidst the urgency architects face in responding to the climate emergency and the tension in preserving architectural continuity. Confronting the challenge of re-evaluating conventional practices reliant on carbon-intensive materials while aspiring to maintain a sense of familiarity and permanence, the thesis highlights the necessity of dense buildings in financial districts to optimise land use and mitigate urban sprawl, thereby supporting sustainable urban growth.

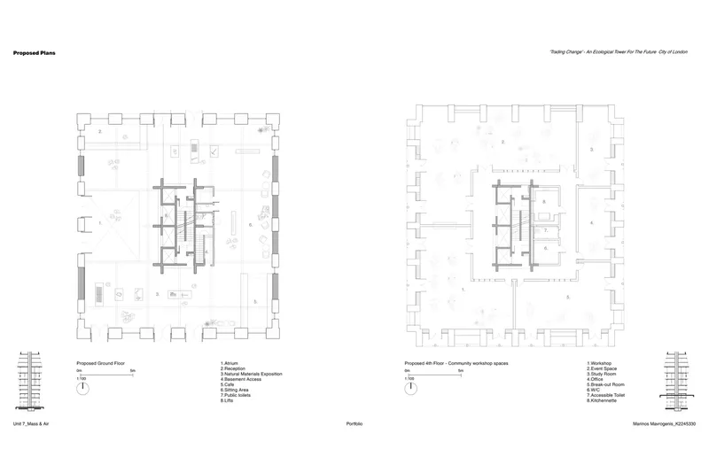
The project becomes a physical and symbolic marketplace where ideas and actions intersect, with integrated public didactic spaces dedicated to environmental awareness, that will promote and inform visitors about natural materials, sustainable building techniques, and embodied carbon. By providing a physical space for environmental organisations to operate, the building becomes a hub for advocacy, education, and action.

Utilising the geographical location of the site, the project acts as an environmental agent, fostering awareness and advocacy for sustainable practices. The ambition and ethos of the tower could attract environmental agencies such as the Architects Climate Action Network (ACAN) and could serve as the main London office for a sustainable bank like Triodos, imagining a future for the City of London where the worlds of trading and environmental activism meet.

Drawing inspiration from Tudor architecture, the project seeks to create a sense of continuity within the City of
London, blending the old with the new in a harmonious dialogue. This connection to the past is not merely aesthetic but
serves to ground the building in the local context, fostering a sense of place and identity.

By doing so, the project aims to create a landmark that embodies both the timeless qualities of Tudor architecture and the forward-looking ethos of ecological responsibility.

As a March graduate I am deeply committed to sustainable development. My latest project, “Trading Change,” blends traditional materials with modern sustainability practices, reflecting my dedication to harmonizing heritage with ecological responsibility.