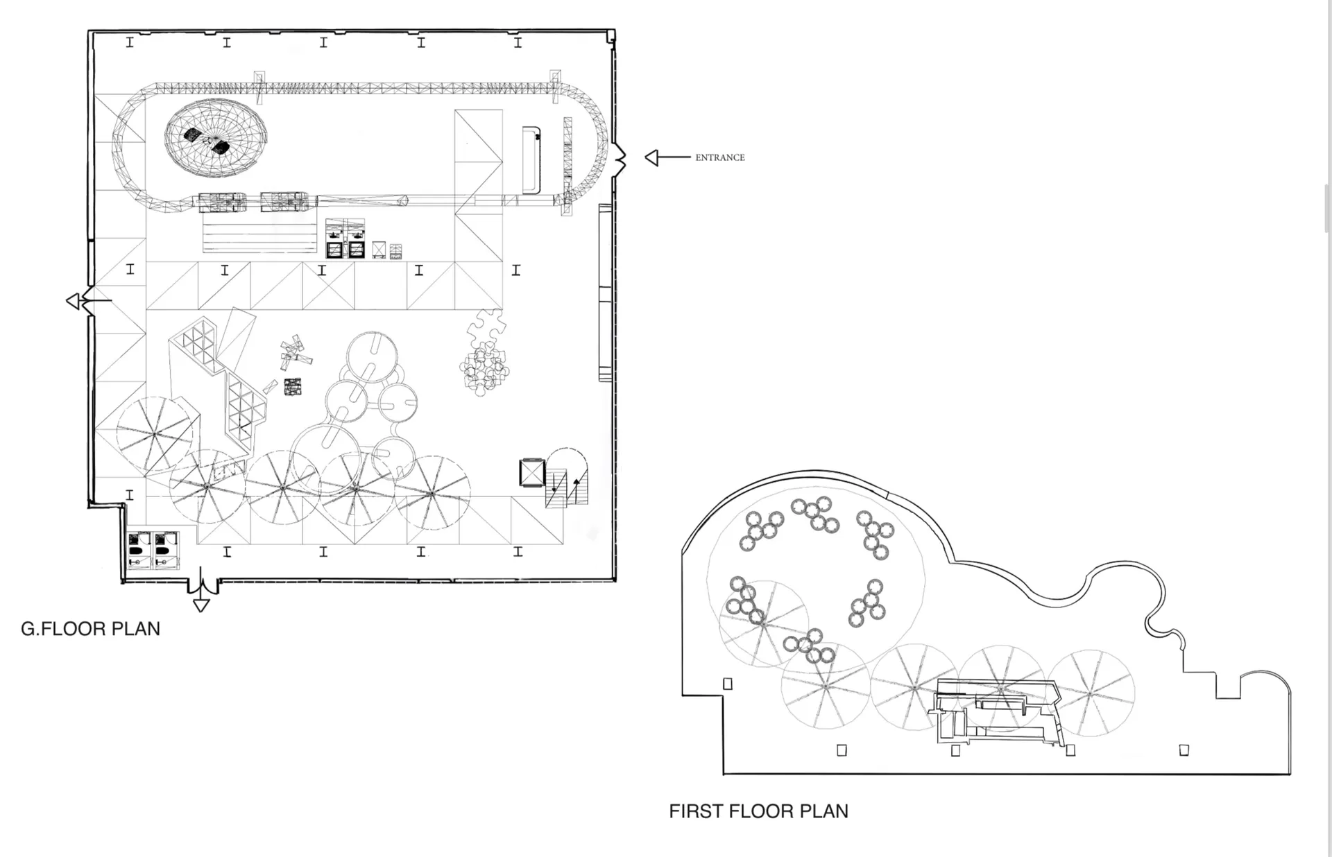
From my visit to Chatham i came across the people of  being very depressed and lonely. I found the city being in lack of color, further carrying the idea of creating a model I wanted to focus on people with social anxiety or people who are afraid of expressing themselves. I created a board game that starts at the entrance and separates people with their likings or people can come to just have coffee. The game can be played in teams and as individual. There are different interfaces a rollercoaster thats riden by 2 people together there is also a rotating risk, a hop on hop off platform that if you unable to finish you need to start from another place, there are also arcade games which can be played. There is also a therapy room where people can come and talk to the therapist. In the end, when the game is finished it leads to a cafe thats placed on 1st floor where you can get a free coffee or a drink upon your liking. The cafe upstairs is placed with a centred space where you can sit and chill and view the activity’s happening downstairs.