My proposal is situated in East Anglia, just outside of Norwich. The project aims to create a comfortable and open space for the users, creating a connection to nature and the site to improve their well-being. The design is intended to both embrace and enhance the natural surroundings, incorporating key features such as sustainability, locally sourced materials, and a panellised construction system.

A central element of the design is the use of reed, a material grown on the site, for the construction panels. This not only ensures the project harmonises with its environment but also supports local ecosystems and reduces the carbon footprint. The other materials, such as wood and lump chalk are also locally sourced, further promoting sustainability and supporting the local economy.

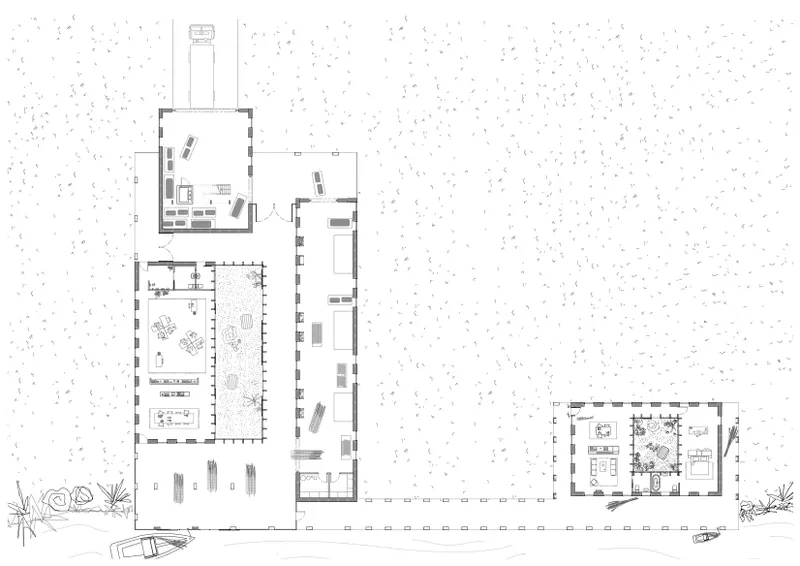
The proposal includes two primary components: a dwelling and a reed mat production facility. The dwelling is designed with a focus on privacy, functionality and comfort, providing a secure and efficient living space. The reed mat production facility aims to utilise the natural resources of the site, creating a sustainable business model that contributes to the local community and economy.

Overall, this project is a comprehensive effort to integrate sustainable practices with innovative design, enhancing both the site and the quality of life for its inhabitants. By utilising local resources and focusing on ecological sustainability, the proposal demonstrates a commitment to innovative and responsible development.

The drawings and models  represent a dwelling and reed matt production facility located in a wetlands by the river Tas.